|
|
Всё про недвижимость
→
Новостройки Санкт-Петербург
→
Квартиры в новостройках Санкт-Петербург
→
Просмотр объявления
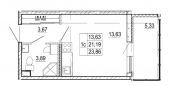
Квартира-студия S=23.86 м2 в ЖК Жили-были
Объявление № 47295797
Размещено 25.01.2019
Обновлено: 11.02.2019
![]() Санкт-Петербург Парнас Ольгинская дорога, Корпус 1, секция 3, квартира 503 Общая: 24 м2, кол-во комнат: 1 Срок сдачи: III Квартал 2020, отделка: с отделкой, тип РґРѕРјР°: Монолит жилой комплекс: Жили-были застройщик: 291 Продается квартира-студия на 4 этаже 24 этажного дома с чистовой отделкой по ДДУ. Возможна рассрочка, ипотека.
Объект на карте Похожие объявления
|
ИЗБРАННОЕ
В избранном
ничего нет САМЫЕ ПРОСМАТРИВАЕМЫЕ
|
Всё про недвижимость в другом регионе:
показать все
© Всё про недвижимость | allpn.RU 2025
















Общая: 55 м2, жилая: 13.5 м2, кухня: 17.4 м2, этаж: 2 из 9
Санкт-Петербург Санкт-Петербург, Малоохтинский проспект, 68 



