|
|
Всё про недвижимость
→
Новостройки Санкт-Петербург
→
Квартиры в новостройках Санкт-Петербург
→
Просмотр объявления
Евро-двушка S=46.43 м2 в ЖК Leningrad
Объявление № 47360367
Размещено 11.02.2019
Обновлено: 11.02.2019
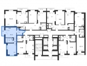
![]() Санкт-Петербург Озерки Мориса Тореза , 118 а Общая: 46 м2, кол-во комнат: 1 Срок сдачи: II Квартал 2019, отделка: без отделки, тип РґРѕРјР°: Кирпично-монолитный застройщик: 550 Продается двухкомнатная квартира S=46.43 м2.
Секция 1, корпус 118А, номер квартиры 35а. Высота потолков = 2,75 м. Без отделки, договор ДДУ, ипотека, рассрочка.
Объект на карте Похожие объявления
|
ИЗБРАННОЕ
В избранном
ничего нет САМЫЕ ПРОСМАТРИВАЕМЫЕ
|
Всё про недвижимость в другом регионе:
показать все
© Всё про недвижимость | allpn.RU 2025


















Общая: 55 м2, жилая: 13.5 м2, кухня: 17.4 м2, этаж: 2 из 9
Санкт-Петербург Санкт-Петербург, Малоохтинский проспект, 68 



